Vastaavia tuloksia ei löytynyt. Kokeile etsiä yleisemmällä avainsanalla.

Tuotteet lisätty ostoskoriin!
dušisein Vario 1100x2000 mm, ribiklaas dušisein Vario 1100x2000 mm, ribiklaas dušisein Vario 1100x2000 mm, ribiklaas dušisein Vario 1100x2000 mm, ribiklaas

suihkuseinä INTERIA Vario 1100x2000 mm, uritettu lasi

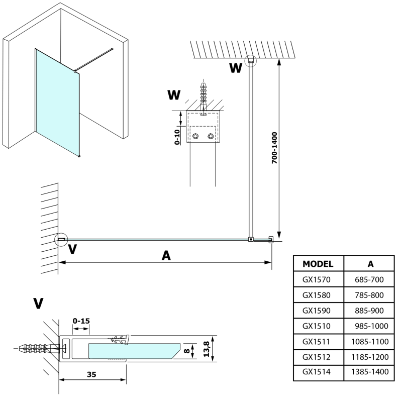
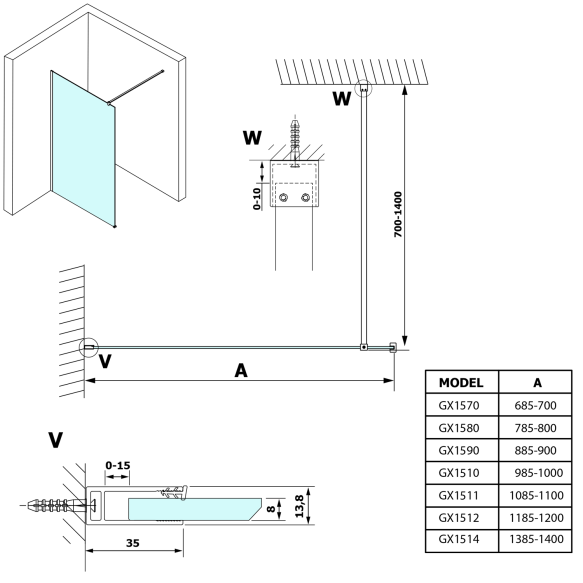
GX1511

INTERIA

kpl

n. 2-4 viikkoa

234,00 €

292,50 €

5,13 €/Kg 4,11 €/Kg

  • Tuotesarja VARIO
    Lasin paksuus mm 8
    Lasin väri Nordic lasi
    Paino kg 57
    Leveys mm 1100
    Korkeus mm 2000
    Tyyli Nykyaikainen


Samanlaiset tuotteet: