Vastaavia tuloksia ei löytynyt. Kokeile etsiä yleisemmällä avainsanalla.

Tuotteet lisätty ostoskoriin!
dušisein Vario 1400x2000 mm, ribiklaas dušisein Vario 1400x2000 mm, ribiklaas dušisein Vario 1400x2000 mm, ribiklaas dušisein Vario 1400x2000 mm, ribiklaas

suihkuseinä INTERIA Vario 1400x2000 mm, uritettu lasi

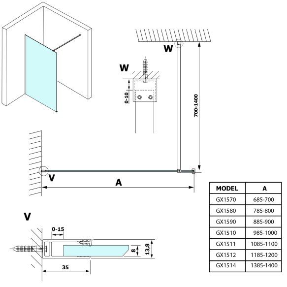
GX1514

INTERIA

kpl

n. 2-4 viikkoa

282,58 €

353,22 €

4,71 €/Kg 3,77 €/Kg

  • Tuotesarja VARIO
    Lasin paksuus mm 8
    Lasin väri Nordic lasi
    Paino kg 75
    Leveys mm 1400
    Korkeus mm 2000
    Tyyli Nykyaikainen


Samanlaiset tuotteet: